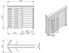
Plnorozměrná branka SNG-190
Motorová branka SNG 190 je určena pro kontrolu vstupu do objektů pro přímou montáž s konstrukcí plnorozměrného turniketu.
Technické parametry
| MODEL: | SNG 190 |
|---|---|
| Napájení: |
230 V AC, prac. napětí 24 V DC
|
| Kapacita průchodu: | 30 osob/min. |
| Rozměry: | 1200 x 2270 mm |
| Šíře průchodu: | do 1000 mm |
| Hmotnost: | 100 kg |
| Instalace: | vnitřní i venkov. prostředí |
| Provedení: | nerez, žárový zinek |
| Příkon: | 25 W |
| Zavírání: | automatické |
| Rozsah teplot: | -20oC až +60oC |
| Rychlost otevření: | 3 sec. |
| Kód produktu: | SNG-190 |
|---|
Detailní informace o produktu Plnorozměrná branka SNG-190
Plnorozměrná branka SNG-190 v bodech
- Instalace současně s plnorozměrným turniketem na rovnou a pevnou podlahu nebo na kotevní sadu.
- Spolehlivý a robustní pohonon na bázi DC motoru s převodovkou.
- Mechanické uzamčení v krajních polohách.
- Možnost otevření na obě strany, automatické zavření.
- Plynulý a rychlý pohyb, okamžité zastavení v případě nárazu na překážku.
- Možnost nastavení rychlosti pohybu.
- Automatické zavření po nastaveném čase,
- Řídící jednotka umožňující snadnou integraci s jakýmikoliv přístupovými nebo vstupenkovými systémy.
- Otevření branky ve směru průchodu.
- Možnost doplnění vymezovacího zábradlí.
Další produkty z kategorie
Jednoduchý plnorozměrný turniket univerzálního typu vhodný pro zvýšenou míru bezpečnosti

Dvojitý plnorozměrný turniket pro rychlejší odbavení osob či oddělený přístup pro ke zefektivnění průchodů

Mohlo by vás zajímat

















