Závora s extrémně dlouhým ramenem RB75
Automatická vjezdová závora pro řízení průjezdu na místech s extrémní šířkou: průmyslové areály, řízení dopravy apod. Tato automatická parkovací a vjezdová závora se vyznačuje spolehlivým provozem při zachování velmi příznivé ceny. Automatická vjezdová a parkovací závora vysoké technické úrovně a odolné mechanické konstrukce. Je určena pro řízení průjezdu vozidel neomezené intenzity. Automatická parkovací závora RB 75 umožní spolehlivě řídit vjezd vozidel na parkovací a jiné hlídané plochy. Je spolehlivá a odolná. Pokud máte jakýkoliv dotaz k automatické vjezdové a parkovací závoře RB 75, pak nás neváhejte kontaktovat, zodpovíme veškeré vaše dotazy.
Technické parametry
| Model | RB 75 |
|---|---|
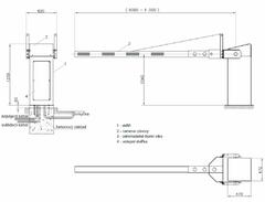
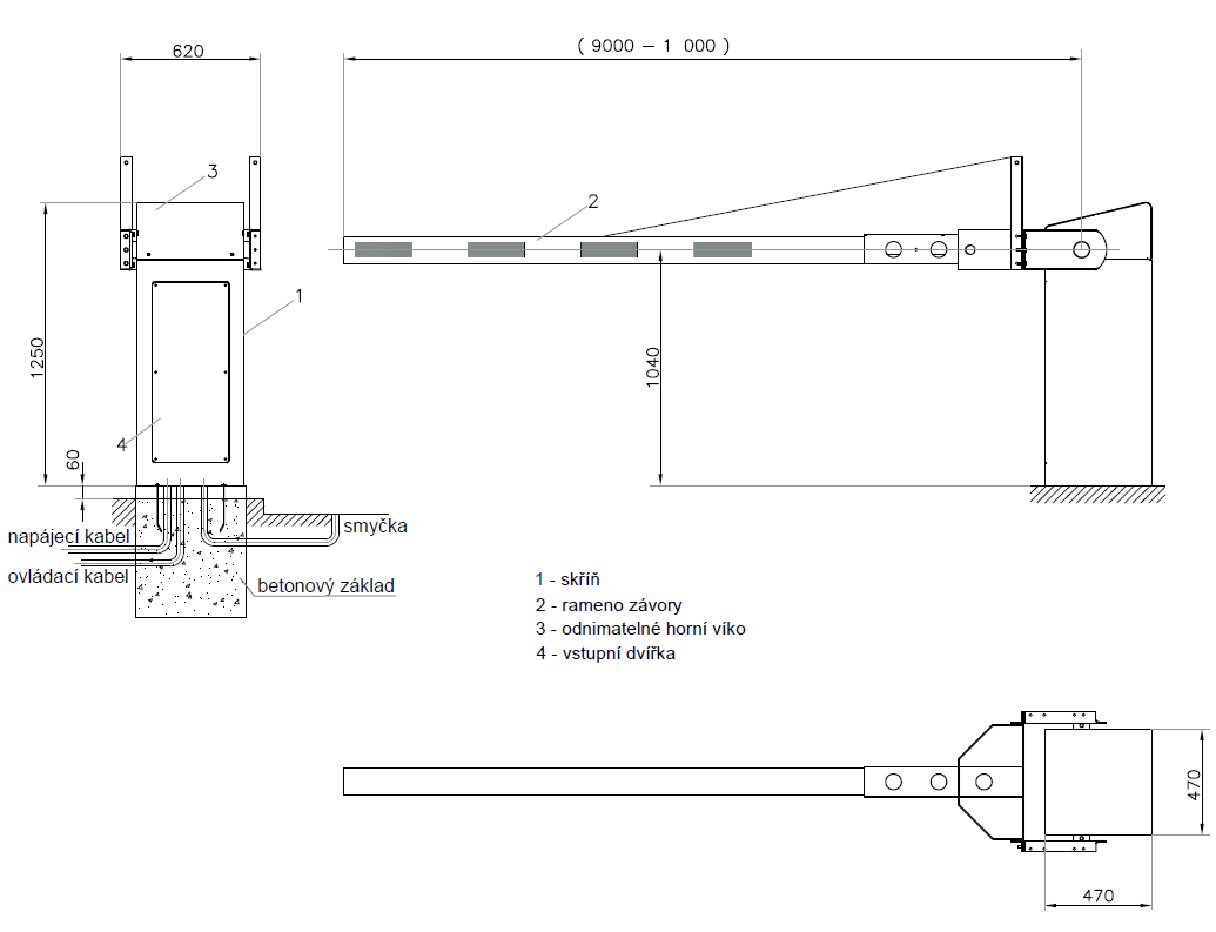
| Délka ramena (max) | max. 14 m |
| Čas otevření / zavření: | 6–10 s |
| Napájení | 230 V / 50 Hz |
| Motor | 250 W |
| Rozsah teplo | -20 až 50 °C |
| Hmotnost | 420 kg |
| Krytí | IP54 |
| MCBF | 3 000 000 cyklů |
| Rozměry (mm) | 480 x 415 x 1170 |
| Rameno závory | 470 x 470 x 1250 mm |
| Kód produktu: | RB75 |
|---|
Detailní informace o produktu Závora s extrémně dlouhým ramenem RB75
Závora s extrémně dlouhým ramenem RB75 v bodech
- Centrálně uložené rameno o délce 10 - 14 m, bílé sčervenými reflexními pruhy se závěsnými ocelový mi lanky pro délku větší než 8 m.
- Konstrukce skříně z ocelového plechu v rozsahutloušťky 3-6 mm.
- Odnímatelné horní víko a boční dveře
- Robustní elektromechanický pohon se šnekovoupřevodovkou a sekundárním převodem
- Frekvenční měnič zajišťující plynulý pohyb ramenea klidný dojezd do koncových poloh.
- Vyvážení ramene pomocí sady pružin podle jehodélky.
- Nouzové odblokování pomocí kliky
- Vestavěná řídící elektronika umožňující různé na stavení a připojení příslušenství.
Použitelné doplňky
- Rameno Alu profil 45 x 100 mm (max.6 m)
- GSM moduly
- Indukční detektory a smyčky
- Klíčový spínač na skříni
- Kloubové rameno
- LED semafory červená/zelená
- Kotevní sada
- Osvětlení ramena
- Kloubové rameno 180°
- Záclonky ramena
- Dvojité záclonky
- Barva na přání
- Červená/zelená LED páska s bílouochrannou gumou
- Blikající maják na skříni
- Dálkové ovládání
- Ultrazvukový detektor
- Radarový detektor
- Bezsmyčkový otevírací detektor smožností řízení
Další produkty z kategorie
Parkovací závora s ramenem o délce 3–5 metrů s nejvyšší rychlostí otevření (od 0,6 sec.)

Univerzální závora s ramenem o délce 3–4 metrů na parkoviště s extrémní intenzitou provozu
















